fabrication de charpentes traditionnelles & écologiques
fabrication résidentiel et commercial
Charpente
Nous offrons une vaste gamme de charpentes sur mesure allant d'une forme simple à 2 pans jusqu'aux projets les plus audacieux!
Nous offrons aussi, et surtout, des charpentes sur blochets, lesquels peuvent s'installer sur toutes sortes de murs ( pans de bois, industriel, béton....).

Ces charpentes sur blochets permettent de créer des combles aménageables pour votre construction neuve ou votre rénovation.

En plus de profiter d'espace supplémentaire vous pourrez jouir d'une superbe charpente traditionnelle fabriquée par un artisan.

Pour les amateurs de hauteurs il sera tout simplement possible de garder l'espace libre.
exemple accroche de ferme sur blochet
ferme sur blochet pour comble aménageable
Possibilitéde réaliser des charpentes "Hybrides" en incluant une  charpente traditionnelle au-dessus de la partie de maison de votre choix lors de votre construction ou rénovation : allier l'industriel et le traditionnel!
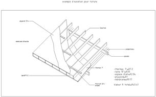
Nos charpentes traditionnelles n'imposent pas une isolation par l'extérieur, ou de faire le travail deux fois, ce choix est à votre convenance.

L'isolation peut se mettre entre les chevrons et sur leur hauteur. Il est également possible de le placer sur la hauteur totale des chevrons et des pannes, tout en laissant apparent le dessous des pannes ainsi que les fermes.

pour en voir plus sur les avantages d'isolation cliquez ici.
exemple isolation entre les chevrons
Nous offrons aussi l'équarrissage à la hache de poutres intégrées dans les charpentes. L'équarrissage sur billot droit est possible, ou sur des bois de formes plus aléatoires pour ajouter un coté très rustique à votre construction.
integration de bois équarris
Nos charpentes sont intégralement prises en charge, de leur conception à leur realisation dans nos ateliers et par nos artisans. 

Nous pouvons assurer la livraison sur les chantiers et la location d'un camion grue est également possible.

Les charpentes sont livrées avec leurs plans de montage. 

Cependant, nous n'assurons pas le montage. Il est préférable de faire faire la pose par l'un de nos partenaires professionnels de la construction.

Bonne Charpente!