Envie de réaliser un garage, un abri, ou un patio...ou tout autre objets. Nous réalisons des plans pour vous !
Les plans sont réaliser avec le logiciel "libreCAD" distribuer par Linux et de 3DS max pour les élévations .
Pour les charpentes et autres structures le poids des charges sont calculer selon les "données climatiques des villes au Québec selon le CNBC 2010"
Inclus dans une demande de plans de structures:
-la réalisations du dessin en deux exemplaires
-le détails des charges
-le débit du bois utile à la réalisation
Les plans d'escaliers viennent seul, aucun débit de bois ne va avec.
possibilités:
- avoir le plans pour la réalisation d'une épure
-une liste des assemblages traditionnelles utile à la réalisation
du plan à l'installation:
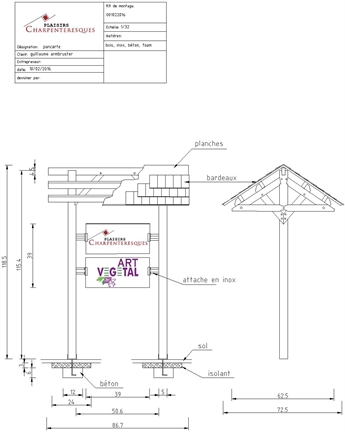
plan d'une marquise avec barrière réalisée avec LibreCAD
réalisation après montage, structure montée par "rénovation Daniel Savoie"